223 Highway TT, Oak Grove, MO 64075

     
  • 4Beds
  •   
  • 3 Baths
  •  
  • 0½ Baths
  •  
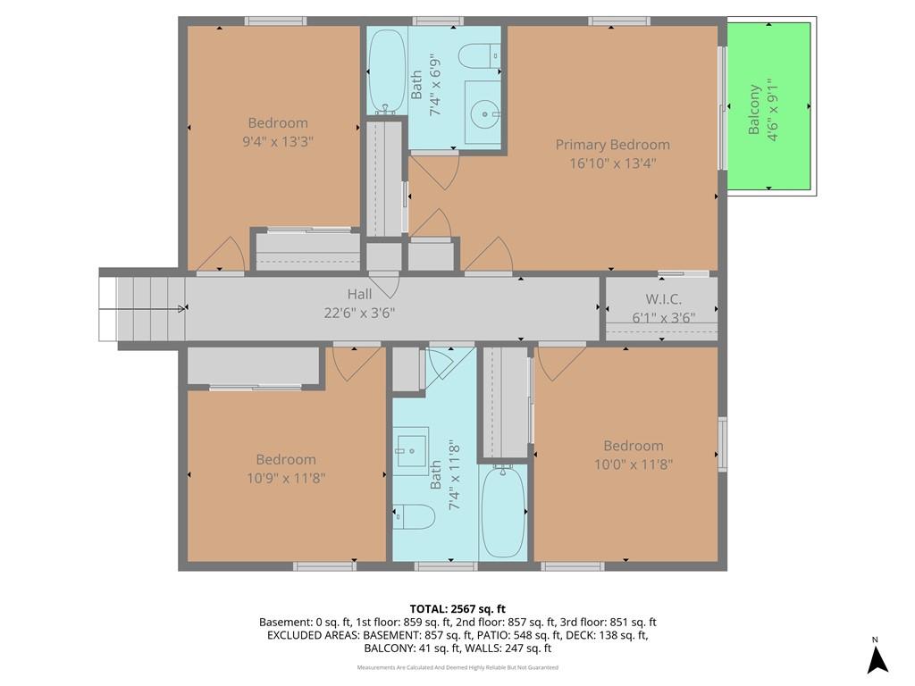
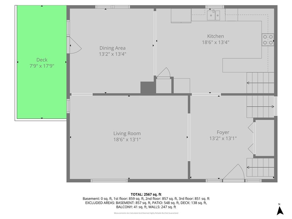
  • 2,567Sq Ft
Mortgage Calculator

$369,900
 est. $1,537/mo

Buyers never turned in earnest deposit and no inspections were completed. Seller chose to move back to active. Nestled on 3.48 scenic acres, this 4 bedroom, 3 bathroom side-to-side split offers the perfect blend of privacy, space, and opportunity. Surrounded by mature trees with a peaceful pond on the property, this setting provides a quiet, country feel while still being conveniently located. Inside, you’ll find spacious living areas, a functional layout, and plenty of natural light throughout. The kitchen offers ample cabinet space and flows easily into the dining area, making it ideal for everyday living or entertaining. The finished lower level features a cozy fireplace and additional living space, perfect for a second family room, recreation area, or home office. Step outside and enjoy everything this property has to offer—from the expansive yard to the outbuilding/shop, providing plenty of room for hobbies, storage, or equipment. With nearly 3.5 acres, there’s endless potential for outdoor living, gardening, or simply enjoying the peaceful surroundings. This home is being sold AS-IS, making it a great opportunity for buyers looking to add their own personal touches and build equity in a beautiful setting. Don’t miss your chance to own acreage, a pond, and a home full of potential!

Directions
i-70 to Oak Grove Exit, South to Nivens Rd, Nivens turns into TT, property on the North Side
Subdivision
Other
City
Oak Grove
County
Lafayette
Property Type
Residential / Single Family Residence
Listing Updated
Apr 23, 2026 at 10:04am
MLS Number
2614219
Property Tax
$1,777
Home Owners Association
No
Disclaimer
The information displayed on this page is confidential, proprietary, and copyrighted information of Heartland Multiple Listing Service, Inc. (“Heartland MLS”). Copyright 2026, Heartland Multiple Listing Service, Inc. Heartland MLS, Elite Realty and Agent Jo do not make any warranty or representation concerning the timeliness or accuracy of the information displayed herein. In consideration for the receipt of the information on this page, the recipient agrees to use the information solely for the private non-commercial purpose of identifying a property in which the recipient has a good faith interest in acquiring.
The data relating to real estate displayed on this website comes in part from the Heartland Multiple Listing Service database compilation. The properties displayed on this website may not be all of the properties in the Heartland MLS database compilation, or all of the properties listed with other brokers participating in the Heartland MLS IDX program. Detailed information about the properties displayed on this website includes the name of the listing company.
Information is deemed reliable but is not guaranteed.

Copyright © 2026 ELITE Realty.