410 B Street, Belton, MO 64012

     
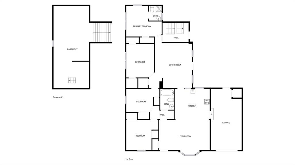
  • 4Beds
  •   
  • 2 Baths
  •  
  • 0½ Baths
  •  
  • 1,526Sq Ft
Mortgage Calculator

$230,000
 est. $1,005/mo

Step into 410 B St, where new flooring throughout the home and fresh interior paint create an updated and appealing atmosphere. The kitchen is thoughtfully appointed with an accent backsplash and all stainless steel appliances, ready for everyday use. A functional patio provides an accessible outdoor area. This home is a perfect blend of style and functionality. Don't miss out on this gem! Included 100-Day Home Warranty with buyer activation

Directions
Head west on E North Ave Turn left onto E Walnut St Turn left onto B St
Subdivision
Orig Belton
City
Belton
County
Cass
Property Type
Residential / Single Family Residence
Listing Updated
Apr 17, 2026 at 7:04pm
MLS Number
2613997
Property Tax
$1,694
Home Owners Association
No
Disclaimer
The information displayed on this page is confidential, proprietary, and copyrighted information of Heartland Multiple Listing Service, Inc. (“Heartland MLS”). Copyright 2026, Heartland Multiple Listing Service, Inc. Heartland MLS, Elite Realty and Agent Jo do not make any warranty or representation concerning the timeliness or accuracy of the information displayed herein. In consideration for the receipt of the information on this page, the recipient agrees to use the information solely for the private non-commercial purpose of identifying a property in which the recipient has a good faith interest in acquiring.
The data relating to real estate displayed on this website comes in part from the Heartland Multiple Listing Service database compilation. The properties displayed on this website may not be all of the properties in the Heartland MLS database compilation, or all of the properties listed with other brokers participating in the Heartland MLS IDX program. Detailed information about the properties displayed on this website includes the name of the listing company.
Information is deemed reliable but is not guaranteed.

Copyright © 2026 ELITE Realty.