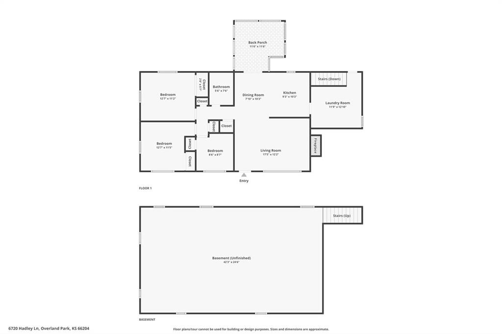
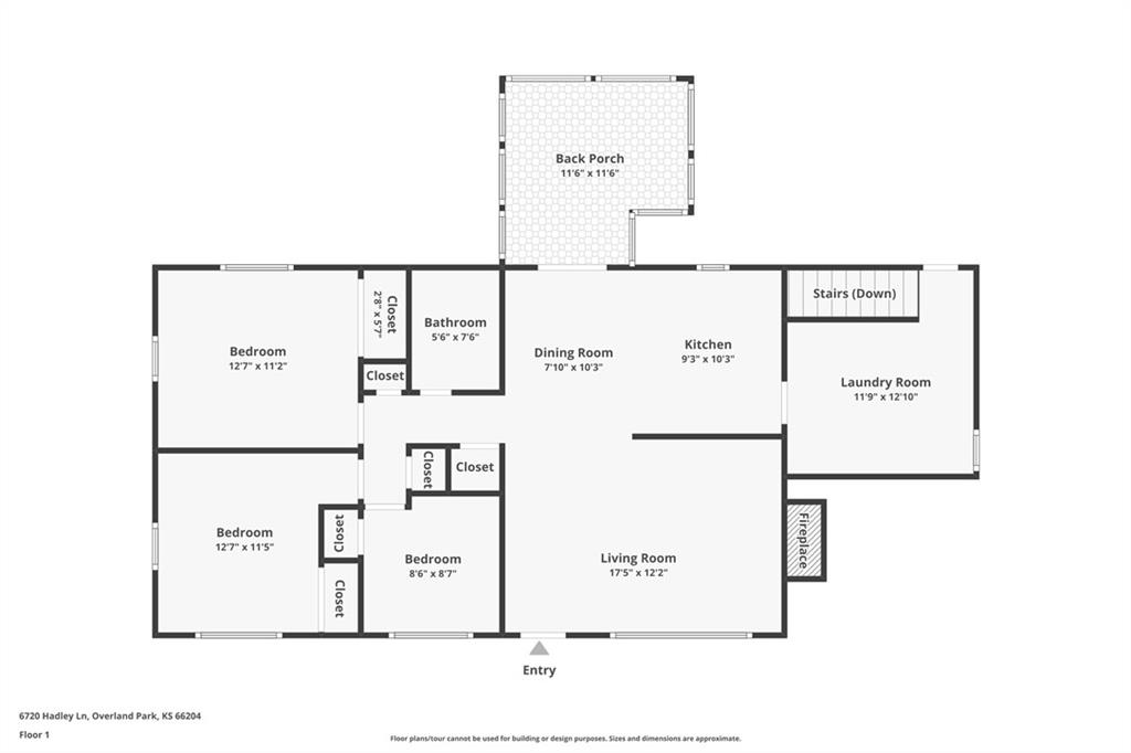
6720 Hadley Lane, Overland Park, KS 66204

     
  • 3Beds
  •   
  • 1 Bath
  •  
  • 0½ Baths
  •  
  • 1,104Sq Ft
Mortgage Calculator

$268,000
 est. $1,258/mo

Location, Location, Location! This charming ranch-style home in the highly sought-after Milburn West Subdivision is priced to sell and offers the perfect combination of comfort and convenience. The newly built front porch is an ideal spot for morning coffee, evening relaxation, or simply enjoying the outdoors. Inside, you’ll find a warm and welcoming living area highlighted by hardwood floors and a wood-burning fireplace. All three bedrooms, the full bathroom, and the laundry are located on the main level, making one-level living easy and accessible. The eat-in kitchen opens to a screened-in deck overlooking a fenced backyard, providing a great space for privacy and outdoor enjoyment. The seller has also invested significantly in the home’s foundational structure. Improvements include permanently stabilized basement walls, sump pumps with battery backup, a white vapor barrier waterproofing system, and a modern French drain system designed to help manage water and protect the foundation both inside and out. All work comes with a lifetime warranty, and the seller maintains an annual service plan through Thrasher to ensure everything continues to operate as intended. Located just minutes from Antioch Park, Shawnee Mission Parkway, I-35, Milburn Country Club, and Broadmoor Urban Farm—a popular spot for seasonal farmers markets—this home provides exceptional access to recreation, dining, and entertainment. The seller has made extensive structural improvements, including permanently stabilized basement walls, sump pumps with battery backup, a white vapor barrier waterproofing system, and a modern French drain system. All work carries a lifetime warranty, and the seller maintains an annual service plan through Thrasher. Located minutes from Antioch Park, Shawnee Mission Parkway, I-35, Milburn Country Club, and Broadmoor Urban Farm with its seasonal farmers market. Excellent access to recreation, dining, and entertainment.

Directions
I-35 to 67th Street, go east on 67th Street To Antioch, Go South on Antioch to W 68th Terrace, Take W 68th Terrace to Hadley Ln Home will be on the left.
Subdivision
Milburn West
City
Overland Park
County
Johnson, KS
Property Type
Residential / Single Family Residence
Listing Updated
Nov 21, 2025 at 4:11am
MLS Number
2588717
Property Tax
$3,013
Home Owners Association
No
Disclaimer
The information displayed on this page is confidential, proprietary, and copyrighted information of Heartland Multiple Listing Service, Inc. (“Heartland MLS”). Copyright 2025, Heartland Multiple Listing Service, Inc. Heartland MLS, Elite Realty and Agent Jo do not make any warranty or representation concerning the timeliness or accuracy of the information displayed herein. In consideration for the receipt of the information on this page, the recipient agrees to use the information solely for the private non-commercial purpose of identifying a property in which the recipient has a good faith interest in acquiring.
The data relating to real estate displayed on this website comes in part from the Heartland Multiple Listing Service database compilation. The properties displayed on this website may not be all of the properties in the Heartland MLS database compilation, or all of the properties listed with other brokers participating in the Heartland MLS IDX program. Detailed information about the properties displayed on this website includes the name of the listing company.
Information is deemed reliable but is not guaranteed.

Copyright © 2025 ELITE Realty.