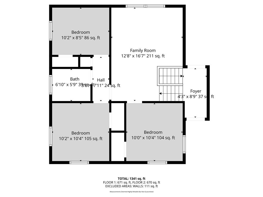
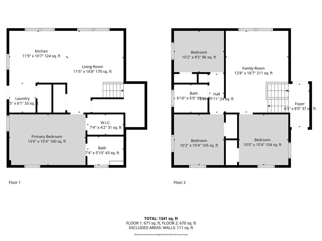
18805 E Arrowhead Drive, Independence, MO 64056

     
  • 4Beds
  •   
  • 2 Baths
  •  
  • 0½ Baths
  •  
  • 1,341Sq Ft
Mortgage Calculator

$190,000
 est. $869/mo

Welcome home to this beautifully updated property in Far View Heights Subdivision ! This charming 4 bed, 2 bath home features recent updates throughout, offering a perfect blend of modern finishes and everyday functionality. With upgrades to the home and an inviting layout, this home is a must see. Recent Updates Include: • New interior paint • Bright kitchen with quartz counter tops • Updated bathrooms with modern fixtures • Updated lighting and hardware Appliances: All kitchen appliances will remain in the home in their current condition. Appliances to stay AS IS, with no warranties or repairs provided by the seller. Enjoy a great location in Fort Osage School District, close to local amenities, shopping, and major highways. Schedule your showing today!

Directions
24 Hwy. to Susq., S. to Bundschu, E. to Arrowhead, S. to home
Subdivision
Far View Heights
City
Independence
County
Jackson
Property Type
Residential / Single Family Residence
Listing Updated
Nov 19, 2025 at 4:11am
MLS Number
2588324
Property Tax
$1,862
Home Owners Association
No
Disclaimer
The information displayed on this page is confidential, proprietary, and copyrighted information of Heartland Multiple Listing Service, Inc. (“Heartland MLS”). Copyright 2025, Heartland Multiple Listing Service, Inc. Heartland MLS, Elite Realty and Agent Jo do not make any warranty or representation concerning the timeliness or accuracy of the information displayed herein. In consideration for the receipt of the information on this page, the recipient agrees to use the information solely for the private non-commercial purpose of identifying a property in which the recipient has a good faith interest in acquiring.
The data relating to real estate displayed on this website comes in part from the Heartland Multiple Listing Service database compilation. The properties displayed on this website may not be all of the properties in the Heartland MLS database compilation, or all of the properties listed with other brokers participating in the Heartland MLS IDX program. Detailed information about the properties displayed on this website includes the name of the listing company.
Information is deemed reliable but is not guaranteed.

Copyright © 2025 ELITE Realty.