3025 N 70th Street, Kansas City, KS 66109

     
  • 3Beds
  •   
  • 2 Baths
  •  
  • 0½ Baths
  •  
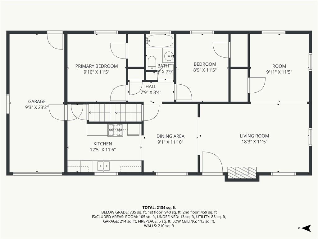
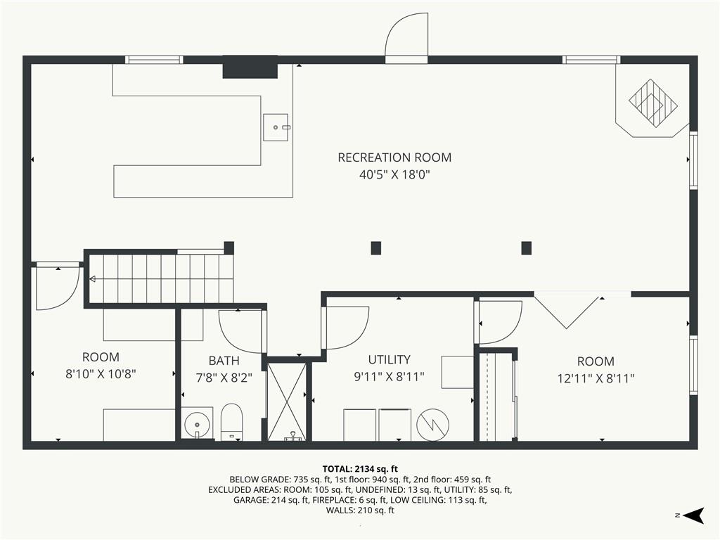
  • 2,511Sq Ft
Mortgage Calculator

$250,000
 est. $1,201/mo

Very well kept ranch home with finished attic and finished walkout basement with wet bar. Basement was just remodeled and has a wood burning stove. Almost 1/2 acre lot. All stone exterior. 2 bedrooms on the main floor plus one where the wall was removed - add a wall and door for another main floor bedroom. Attic bedroom and a 4th nonconforming bedroom in the basement with full bath and sep office. Lots of space with 2 large living areas. 2 sheds. 1 car garage plus carport. This is a lot of house for the money. Would make a great rental home as well. There are beautiful hardwood floors under the carpet in the living room and likely in the bedrooms as well - please verify.

Directions
Leavenworth Road to N 70th - South to home
Subdivision
Miros
City
Kansas City
County
Wyandotte
Property Type
Residential / Single Family Residence
Listing Updated
Nov 14, 2025 at 1:11am
MLS Number
2581057
Property Tax
$3,143
Home Owners Association
No
Disclaimer
The information displayed on this page is confidential, proprietary, and copyrighted information of Heartland Multiple Listing Service, Inc. (“Heartland MLS”). Copyright 2025, Heartland Multiple Listing Service, Inc. Heartland MLS, Elite Realty and Agent Jo do not make any warranty or representation concerning the timeliness or accuracy of the information displayed herein. In consideration for the receipt of the information on this page, the recipient agrees to use the information solely for the private non-commercial purpose of identifying a property in which the recipient has a good faith interest in acquiring.
The data relating to real estate displayed on this website comes in part from the Heartland Multiple Listing Service database compilation. The properties displayed on this website may not be all of the properties in the Heartland MLS database compilation, or all of the properties listed with other brokers participating in the Heartland MLS IDX program. Detailed information about the properties displayed on this website includes the name of the listing company.
Information is deemed reliable but is not guaranteed.

Copyright © 2025 ELITE Realty.