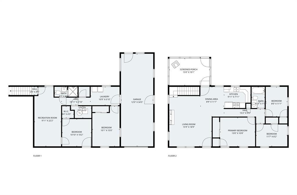
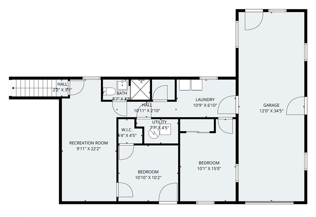
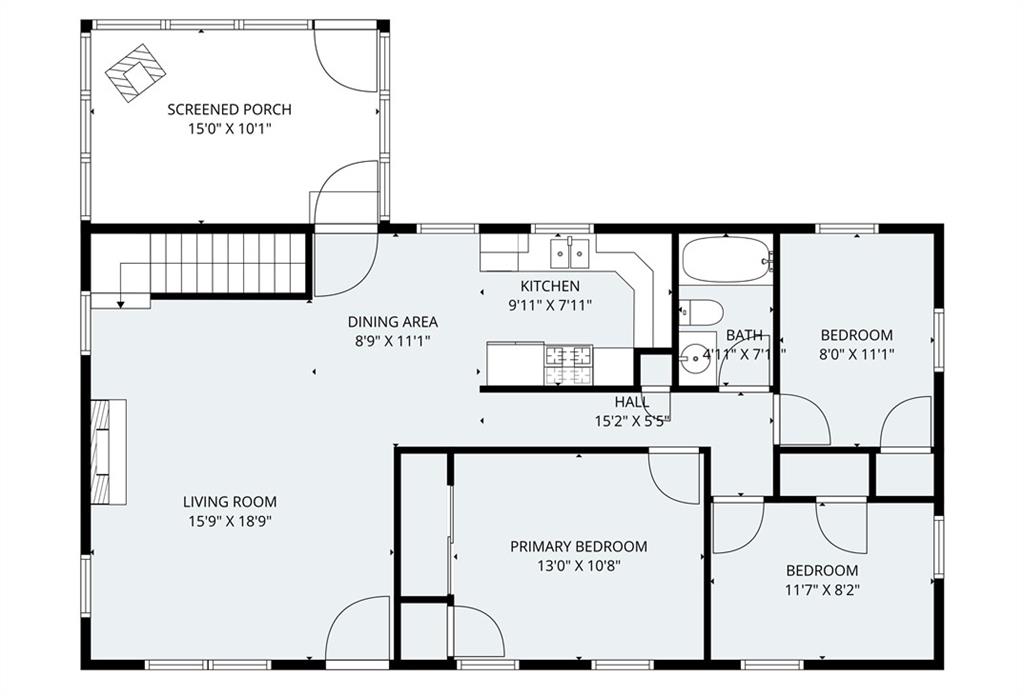
This inviting raised ranch offers a total of 5 bedrooms (3 upstairs + 2 in the basement) and 2 full bathrooms, giving you plenty of space and flexibility for your needs. The fully remodeled basement (completed just last year) feels like its own retreat, featuring a spacious living area, a full bathroom, and two additional bedrooms — one with a window and closet, the other perfect for an office, guest room, or flex space. Upstairs, you’ll love the fresh interior paint, the dining/kitchen combo, and comfortable flow throughout the home. Step out back and unwind in the screened porch with fireplace, overlooking your fenced backyard — perfect for entertaining year-round. This home is move-in ready and offers the versatility you’ve been searching for. Buyers agent to confirm room measurements, lot size, square footage and school district information
Copyright © 2025 ELITE Realty.