2211 Crestview Place, Raymore, MO 64083

     
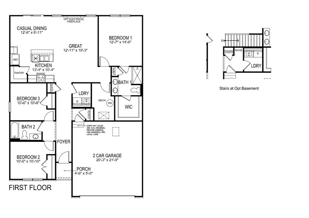
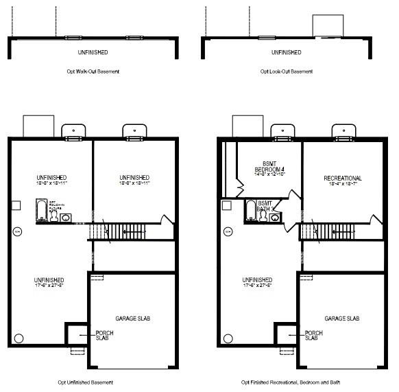
  • 4Beds
  •   
  • 3 Baths
  •  
  • 0½ Baths
  •  
  • 2,170Sq Ft
Mortgage Calculator

$444,990
 est. $2,042/mo

Welcome to Alexander Creek, an exceptional 55+ community where modern design meets timeless elegance, crafted by D.R. Horton, "America's Builder." Alexander Creek is a lively community offering neighborhood outings, fitness groups, outdoor activities and more. This residence stands out with its James Hardie® siding and stone accents, providing both durability and timeless appeal. The welcoming three-rail, two-panel insulated front door enhances both the home's aesthetics and energy efficiency. Inside, you’ll find 9-foot ceilings and a spacious, open layout that exudes warmth and sophistication. The interior has elegant details and a refined touch throughout. The gourmet kitchen serves as the heart of the home, featuring 36-inch painted maple cabinets, quartz countertops, and premium Whirlpool® stainless steel appliances—perfect for both everyday meals and entertaining. The bathrooms offer a luxurious retreat, complete with quartz-topped vanities, Moen® Chrome Faucets, and a primary bath with a 5-foot shower and framed glass enclosure, providing a spa-like experience. Equipped with advanced smart home technology, this residence makes modern living effortless. Control your home’s climate and security with a Honeywell® Pro Z-Wave® Thermostat, Amazon Echo, and a connected home panel, all designed for ultimate convenience. LED lighting, a high-efficiency gas furnace, and energy-efficient insulated windows ensure year-round comfort and savings. Additional features like luxury vinyl plank flooring, a garage with an opener, and dual data/TV lines in key areas highlight the home’s commitment to convenience and modern living. D.R. Horton’s attention to detail and commitment to quality are evident throughout, making this home a perfect blend of luxury and functionality. Don’t miss your chance to own this exceptional home in Alexander Creek. Schedule your private tour today and discover a lifestyle where elegance and convenience meet in perfect harmony.

Directions
Follow US-71 S and I-49 to MO-58 E in Belton. Take exit 174 from I-49 S. Turn Left and Continue on MO-58 E to Big Creek. Continue 7 miles and turn Left on Ward Rd. Turn left on to Alexander Creek Drive. Turn Right on to Crestview Place. The home is on your right.
Subdivision
Alexander Creek
City
Raymore
County
Cass
Property Type
Residential / Single Family Residence
Listing Updated
Dec 15, 2025 at 5:12pm
MLS Number
2578675
Property Tax
$0
Home Owners Association
Yes - Alexander Creek Home Association
Disclaimer
The information displayed on this page is confidential, proprietary, and copyrighted information of Heartland Multiple Listing Service, Inc. (“Heartland MLS”). Copyright 2025, Heartland Multiple Listing Service, Inc. Heartland MLS, Elite Realty and Agent Jo do not make any warranty or representation concerning the timeliness or accuracy of the information displayed herein. In consideration for the receipt of the information on this page, the recipient agrees to use the information solely for the private non-commercial purpose of identifying a property in which the recipient has a good faith interest in acquiring.
The data relating to real estate displayed on this website comes in part from the Heartland Multiple Listing Service database compilation. The properties displayed on this website may not be all of the properties in the Heartland MLS database compilation, or all of the properties listed with other brokers participating in the Heartland MLS IDX program. Detailed information about the properties displayed on this website includes the name of the listing company.
Information is deemed reliable but is not guaranteed.

Copyright © 2025 ELITE Realty.