16848 S Norton Street, Olathe, KS 66062

     
  • 4Beds
  •   
  • 3 Baths
  •  
  • 0½ Baths
  •  
  • 2,232Sq Ft
Mortgage Calculator

$606,206
 est. $2,968/mo

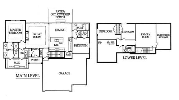
**The SEABROOK II by Gianni Homes * Lot 168 *Currently at Mechanical stage, home should be completed in approximately 8 months** This stunning 4-bedroom, 3-bathroom reverse plan is packed with modern features and designed for comfortable living. Inside, the open floor plan features a spacious master suite complete with a double vanity, walk-in shower, private toilet room, and a walk-in closet conveniently connected to the laundry room. On the opposite side, you’ll find an additional bedroom and full bath. The heart of the home is the gathering area, where the kitchen shines with abundant cabinetry, a walk-in pantry, and expansive countertops. The adjoining dining area provides a picturesque view, while the roomy living room features an elegant fireplace and vaulted ceilings for an airy, spacious feel. Pictures are of the model home

Directions
Mur-Len Road to 169th Place, west five blocks to Winchester St (neighborhood clubhouse), left on Winchester to 169th Terr, right on 169th Terrace, right on Norton house is at the end of the cul-de-sac
Subdivision
Boulder Creek
City
Olathe
County
Johnson, KS
Property Type
Residential / Single Family Residence
Listing Updated
Dec 12, 2025 at 3:12pm
MLS Number
2577848
Property Tax
$8,300
Home Owners Association
Yes
Disclaimer
The information displayed on this page is confidential, proprietary, and copyrighted information of Heartland Multiple Listing Service, Inc. (“Heartland MLS”). Copyright 2025, Heartland Multiple Listing Service, Inc. Heartland MLS, Elite Realty and Agent Jo do not make any warranty or representation concerning the timeliness or accuracy of the information displayed herein. In consideration for the receipt of the information on this page, the recipient agrees to use the information solely for the private non-commercial purpose of identifying a property in which the recipient has a good faith interest in acquiring.
The data relating to real estate displayed on this website comes in part from the Heartland Multiple Listing Service database compilation. The properties displayed on this website may not be all of the properties in the Heartland MLS database compilation, or all of the properties listed with other brokers participating in the Heartland MLS IDX program. Detailed information about the properties displayed on this website includes the name of the listing company.
Information is deemed reliable but is not guaranteed.

Copyright © 2025 ELITE Realty.