5106 Edgehill Street, Kansas City, KS 66106

     
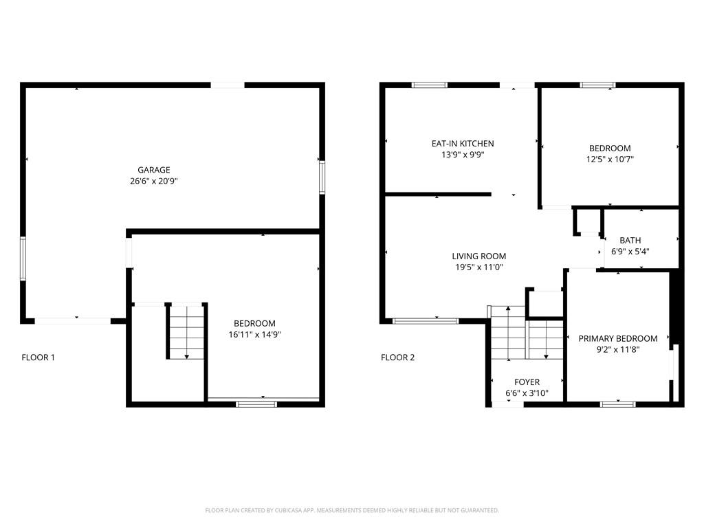
  • 2Beds
  •   
  • 1 Bath
  •  
  • 0½ Baths
  •  
  • 842Sq Ft
Mortgage Calculator

$120,000
 est. $677/mo

Discover the potential in this 2-bedroom, with the possibility of a 3rd in the basement, 1-bath half duplex. Whether you’re looking to expand your rental portfolio or update and move in yourself, this home is a fantastic opportunity. The property does need some work, but an appraisal has already been completed, meaning you’ll be walking in with equity from day one. This is your chance to secure a property with built-in value before it officially hits the market. We’re open to considering offers, so don’t wait to take a look and make this opportunity yours.

Directions
Take US-69 N, I-35 N and I-635 N to Metropolitan Ave in Kansas City. Take exit 2 A from I-635 N 12 min (12.3 mi) Continue on Metropolitan Ave. Drive to Edgehill Dr
Subdivision
Owen View
City
Kansas City
County
Wyandotte
Property Type
Residential / Half Duplex
Listing Updated
Dec 17, 2025 at 7:12pm
MLS Number
2577158
Property Tax
$2,716
Home Owners Association
No
Disclaimer
The information displayed on this page is confidential, proprietary, and copyrighted information of Heartland Multiple Listing Service, Inc. (“Heartland MLS”). Copyright 2025, Heartland Multiple Listing Service, Inc. Heartland MLS, Elite Realty and Agent Jo do not make any warranty or representation concerning the timeliness or accuracy of the information displayed herein. In consideration for the receipt of the information on this page, the recipient agrees to use the information solely for the private non-commercial purpose of identifying a property in which the recipient has a good faith interest in acquiring.
The data relating to real estate displayed on this website comes in part from the Heartland Multiple Listing Service database compilation. The properties displayed on this website may not be all of the properties in the Heartland MLS database compilation, or all of the properties listed with other brokers participating in the Heartland MLS IDX program. Detailed information about the properties displayed on this website includes the name of the listing company.
Information is deemed reliable but is not guaranteed.

Copyright © 2025 ELITE Realty.