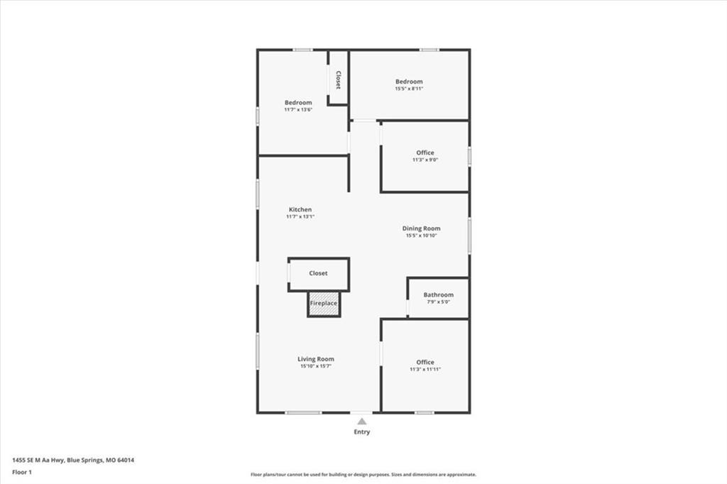
1455 Southeast AA Highway, Blue Springs, MO 64014

Mortgage Calculator

$1,250,000
 est. $5,234/mo

Great industrial acreage property in Blue Springs to start or expand your business. This fully-fenced, 2.95-acre property has a fully updated office and a huge 60x80 (4800 SF) shop. It is conveniently located in Unincorporated Jackson County, right on AA Hwy between Blue Springs and Grain Valley. The 1344 sqft office was completely remodeled in 2020 with a new kitchen, bathroom, wiring, plumbing, insulation, drywall, HVAC system, ceiling fans, and is hardwired with CAT5. The oversized heated/insulated shop was also built in 2020. It features (4) 14' tall x 12' wide doors with openers, (2) walkthrough man doors, LED lights, 110V, 220V, and 50A outlets for welders, a mechanics pit, plumbing for air lines, ceiling fans, and a half bath with room to add a shower. One like this doesn't come along very often. Call to book your showing today!

Directions
From I-70/Adams Dairy Pkwy: Head South on Adams Dairy Pkwy, then East/Left on AA Hwy, property is on the North/Left side of AA Hwy in between Blue Springs & Grain Valley
Subdivision
Other
City
Blue Springs
County
Jackson
Property Type
Commercial Sale / Industrial
Listing Updated
Oct 14, 2025 at 2:10pm
MLS Number
2572118
Property Tax
$6,500
Zoning
$COM
Disclaimer
The information displayed on this page is confidential, proprietary, and copyrighted information of Heartland Multiple Listing Service, Inc. (“Heartland MLS”). Copyright 2025, Heartland Multiple Listing Service, Inc. Heartland MLS, Elite Realty and Agent Jo do not make any warranty or representation concerning the timeliness or accuracy of the information displayed herein. In consideration for the receipt of the information on this page, the recipient agrees to use the information solely for the private non-commercial purpose of identifying a property in which the recipient has a good faith interest in acquiring.
The data relating to real estate displayed on this website comes in part from the Heartland Multiple Listing Service database compilation. The properties displayed on this website may not be all of the properties in the Heartland MLS database compilation, or all of the properties listed with other brokers participating in the Heartland MLS IDX program. Detailed information about the properties displayed on this website includes the name of the listing company.
Information is deemed reliable but is not guaranteed.

Copyright © 2025 ELITE Realty.