5804 Manning Avenue, Raytown, MO 64133

     
  • 3Beds
  •   
  • 1 Bath
  •  
  • 1½ Bath
  •  
  • 984Sq Ft
Mortgage Calculator

$199,900
 est. $925/mo

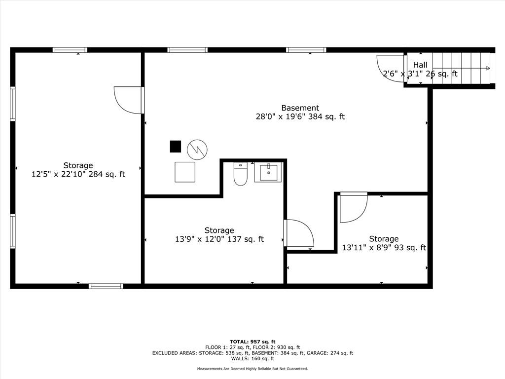
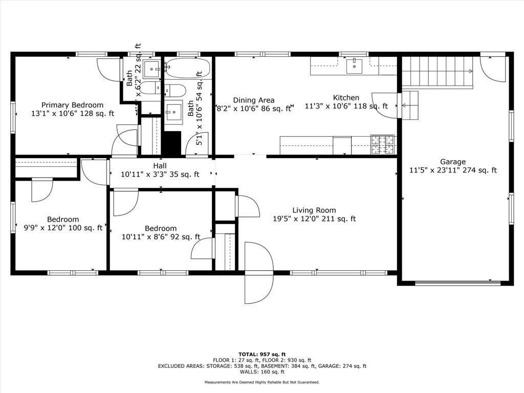
Welcome home! This beautifully refreshed 3-bedroom, 1.5-bath Raytown residence combines modern updates with timeless charm. The home features all-new flooring, updated bathrooms, contemporary fixtures, and brand-new appliances throughout. Major updates have already been completed, including the roof and essential mechanical systems, offering true peace of mind for the next owner. The spacious basement includes a half bath and provides a versatile layout—ideal for a recreation room, home gym, office, or additional living area. Outside, enjoy a large, shaded backyard perfect for entertaining, relaxing, or play. Nearby Sara Colman Park and Blue Ridge Park offer even more green space just moments from your front door. Conveniently located near stadiums, restaurants, shopping, and highway access, this move-in-ready home checks every box for comfort, functionality, and location. Sellers are open to a 2/1 rate buy down. For more information contact the listing agent.

Directions
From I-435, take the exit for 63rd Street. Turn left (east) onto 63rd Street and continue straight for a few miles. Turn right onto Blue Ridge Boulevard, then left onto Raytown Road. Continue south and turn left onto 59th Street. Follow 59th Street east, then turn right onto Manning Avenue. Your destination, 5804 Manning Ave, will be on the left.
Subdivision
Pin Oaks
City
Raytown
County
Jackson
Property Type
Residential / Single Family Residence
Listing Updated
Oct 20, 2025 at 10:10am
MLS Number
2566111
Property Tax
$2,091
Home Owners Association
No
Disclaimer
The information displayed on this page is confidential, proprietary, and copyrighted information of Heartland Multiple Listing Service, Inc. (“Heartland MLS”). Copyright 2025, Heartland Multiple Listing Service, Inc. Heartland MLS, Elite Realty and Agent Jo do not make any warranty or representation concerning the timeliness or accuracy of the information displayed herein. In consideration for the receipt of the information on this page, the recipient agrees to use the information solely for the private non-commercial purpose of identifying a property in which the recipient has a good faith interest in acquiring.
The data relating to real estate displayed on this website comes in part from the Heartland Multiple Listing Service database compilation. The properties displayed on this website may not be all of the properties in the Heartland MLS database compilation, or all of the properties listed with other brokers participating in the Heartland MLS IDX program. Detailed information about the properties displayed on this website includes the name of the listing company.
Information is deemed reliable but is not guaranteed.

Copyright © 2025 ELITE Realty.