16143 S Kaw Street, Olathe, KS 66062

     
  • 4Beds
  •   
  • 3 Baths
  •  
  • 0½ Baths
  •  
  • 2,537Sq Ft
Mortgage Calculator

$653,240
 est. $3,221/mo

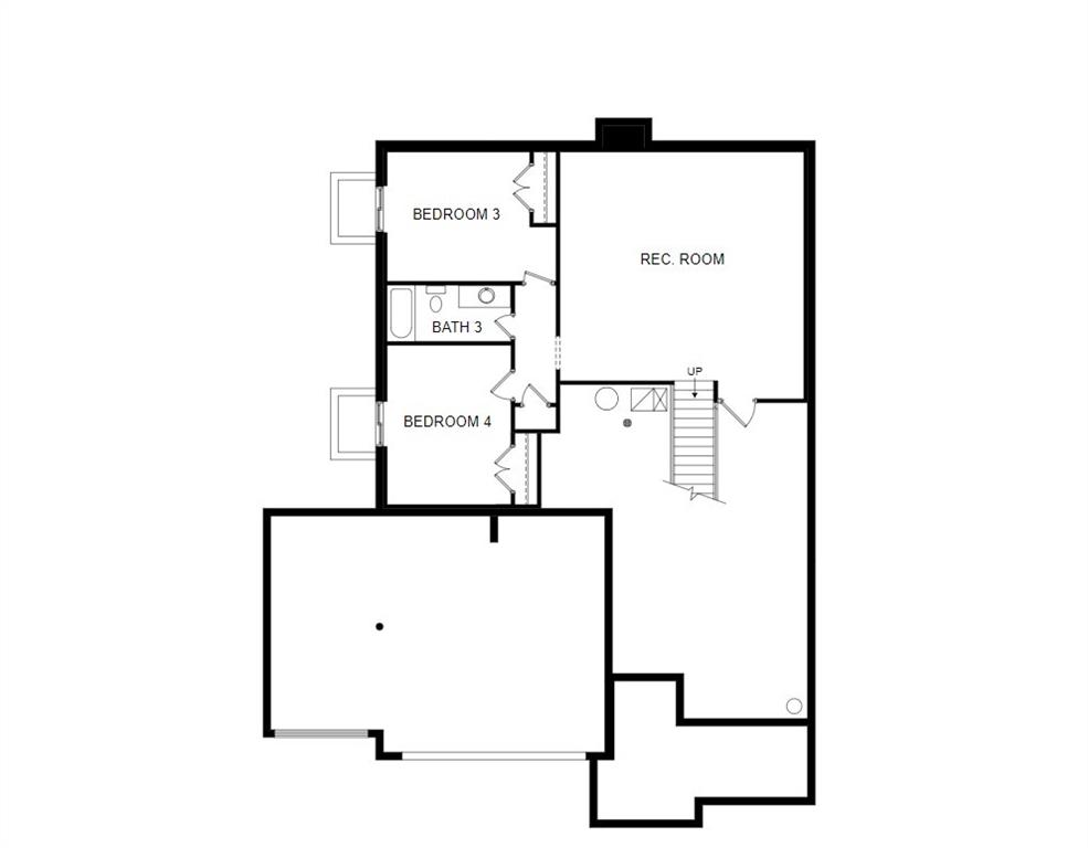
The Richmond Reverse floorplan, by Gabriel Homes is now underway at Heritage Ranch! All in the coveted Heritage Ranch, A Lambie-Rieke Community, with Amenities Galore such as state-of-the-art pool, clubhouse, trails, pickleball. play area, half-court basketball, ponds and so much more coming soon! This community provides a wonderful lifestyle and right next to Heritage Park with Dog Park, Sports Parks, Golf, Lake, Trails and much more! Contact Onsite Agents for Estimated Completion of homes on site, and design selections. Sales Office OPEN 7 Days/Week, located at LOT 65. Renderings &/or images may show features that are subject to change. Sq Ft & Taxes are estimated. Home is under construction. LOT 84. Welcome Home to Heritage Ranch - one of the last NEW Home Communities in Johnson County! Under Construction. 200+/- Days ECD.

Directions
S. on 1-35, E. on 159th St. S. on Blackbob, W. on 161st Terr. N. on Kaw St.
Subdivision
Heritage Ranch
City
Olathe
County
Johnson, KS
Property Type
Residential / Villa
Listing Updated
Oct 16, 2025 at 3:10pm
MLS Number
2543678
Property Tax
$9,216
Home Owners Association
Yes
Disclaimer
The information displayed on this page is confidential, proprietary, and copyrighted information of Heartland Multiple Listing Service, Inc. (“Heartland MLS”). Copyright 2025, Heartland Multiple Listing Service, Inc. Heartland MLS, Elite Realty and Agent Jo do not make any warranty or representation concerning the timeliness or accuracy of the information displayed herein. In consideration for the receipt of the information on this page, the recipient agrees to use the information solely for the private non-commercial purpose of identifying a property in which the recipient has a good faith interest in acquiring.
The data relating to real estate displayed on this website comes in part from the Heartland Multiple Listing Service database compilation. The properties displayed on this website may not be all of the properties in the Heartland MLS database compilation, or all of the properties listed with other brokers participating in the Heartland MLS IDX program. Detailed information about the properties displayed on this website includes the name of the listing company.
Information is deemed reliable but is not guaranteed.

Copyright © 2025 ELITE Realty.