123 N Main Street, Maryville, MO 64468

Mortgage Calculator

$910,000
 est. $3,670/mo

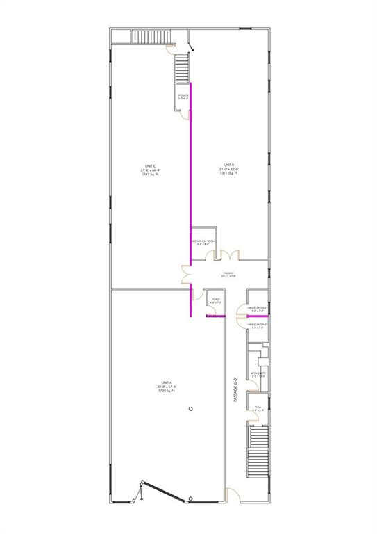
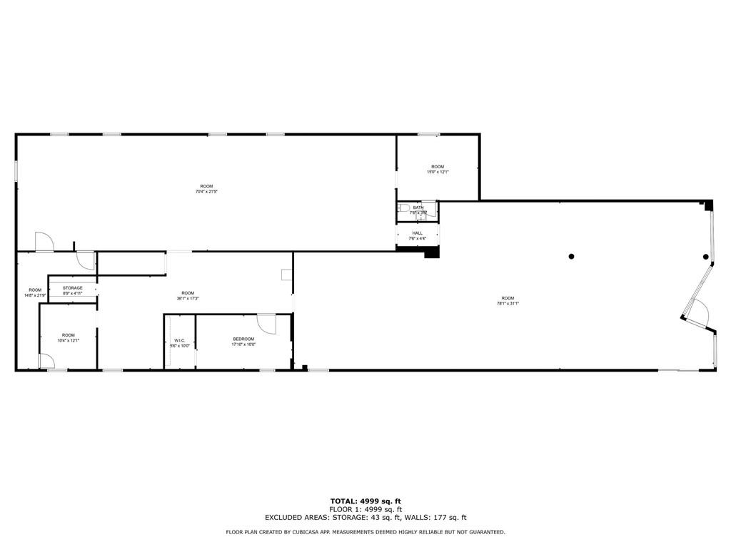
For Sale/Lease : Commercial space is now vacant - There are plans in place to subdivide the vacant commercial space into 3 smaller office units. See floor plan in photos. This mixed-use property is a perfect opportunity for investors and business operators, historically bringing in over $9,000 per month, hitting the 1% rule. Located in downtown Maryville, this building consists of 8 renovated apartment units and a large storefront unit. With an average traffic count of over 10,000 vehicles per day, this location offers prime visibility for a business. Further, the all-new apartment units are 100% occupied & professionally managed. A laundry facility and 4,800 sq feet of climate controlled storage offer extra income potential. There were $130,000 in renovations in 2020 and another $122,000 invested in 2024 to increase the desirability of this building. There are also city grants available for capital improvements on this property, reach out for details, link to city grant located in Private Remarks. Owner/Agent.

Directions
From Main St & 1st St : Head north, building is on the corner of N Main St & E 2nd St.
City
Maryville
County
Nodaway
Property Type
Business Opportunity / Business
Listing Updated
Sep 26, 2025 at 4:09pm
MLS Number
2532140
Property Tax
$3,044
Zoning
$C2
Disclaimer
The information displayed on this page is confidential, proprietary, and copyrighted information of Heartland Multiple Listing Service, Inc. (“Heartland MLS”). Copyright 2025, Heartland Multiple Listing Service, Inc. Heartland MLS, Elite Realty and Agent Jo do not make any warranty or representation concerning the timeliness or accuracy of the information displayed herein. In consideration for the receipt of the information on this page, the recipient agrees to use the information solely for the private non-commercial purpose of identifying a property in which the recipient has a good faith interest in acquiring.
The data relating to real estate displayed on this website comes in part from the Heartland Multiple Listing Service database compilation. The properties displayed on this website may not be all of the properties in the Heartland MLS database compilation, or all of the properties listed with other brokers participating in the Heartland MLS IDX program. Detailed information about the properties displayed on this website includes the name of the listing company.
Information is deemed reliable but is not guaranteed.

Copyright © 2025 ELITE Realty.