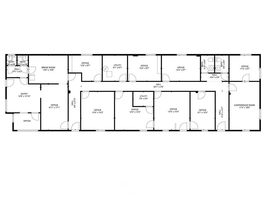
Prime Commercial Space in Warrensburg - Ready for YOUR Business! This is an exceptional opportunity to purchase a well-maintained and strategically located commercial property in the heart of Warrensburg, Missouri. Boasting approximately 2880 square feet of versatile space, a newer Roof, newer exterior siding and gutters, newer windows, entry doors, updated LED lighting, interior paint and partial flooring. This property is ideally suited for a wide range of businesses, from retail and office to service-oriented ventures. A significant advantage of this offering is the immediately occupiable space (current tenant can vacate in as little as 30 days), allowing you to move in and begin operations with minimal delay. Per floorplan drawing, there are 8 designated offices, 2 conference rooms, 4 bathrooms a welcoming reception area, and a break room (with kitchenette), providing a blank canvas for you to customize the space to perfectly align with your specific business needs. Key Features & Benefits: This property offers excellent visibility and accessibility at the corner of a high traffic intersection! Flexible Layout Options; Whether you need private offices, collaborative workspaces, or a combination of both, this property can be adapted to meet your evolving business needs. Ample on-site parking (13 spaces) is available for both clients and employees including one ADA compliant space. Several accessibility features (wide door ways, and ramps), Excellent signage opportunities provide maximum exposure for your business (owner is leaving pole sign frame), Investment Potential: This property also represents a solid investment opportunity in a growing and dynamic business community. Whether you are an owner-occupier or an investor, this property offers excellent potential for long-term appreciation and return on investment. Don't miss this exceptional chance to secure a prime commercial location in Warrensburg! NOTE: Office furniture is NOT included in the sale.
Copyright © 2025 ELITE Realty.